
The Bonavista
Two Storey
1,606 SQ.FT
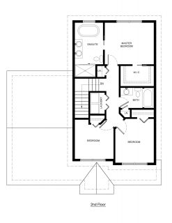
The Bonavista, is a two-storey home that is the perfect blend of style and convenience. Featuring open-concept living, with a central kitchen and an oversized island, it’s the perfect space to entertain. The walk-in pantry with adjacent access to the garage, also offers added convenience for groceries. Upstairs, the beautiful primary suite includes a large walk-in closet, custom tiled shower, soaker tub and double vanity. The second floor also features two additional bedrooms, laundry and family bathroom. Take the 3D tour to see why The Bonavista has quickly become one of the most requested designs in our collection.

The Bonavista
Two Storey
1,606 SQ.FT
The Bonavista, is a two-storey home that is the perfect blend of style and convenience. Featuring open-concept living, with a central kitchen and an oversized island, it’s the perfect space to entertain. The walk-in pantry with adjacent access to the garage, also offers added convenience for groceries. Upstairs, the beautiful primary suite includes a large walk-in closet, custom tiled shower, soaker tub and double vanity. The second floor also features two additional bedrooms, laundry and family bathroom. Take the 3D tour to see why The Bonavista has quickly become one of the most requested designs in our collection.
Design Highlights
-
Living
Welcoming and elegant open-concept layout. -
Entertain
Central kitchen with an oversized island, ideal for hosting friends and family gatherings. -
Comfort
Private primary oasis, with a walk-in closet and dream ensuite that features a tiled custom shower, stand-alone soaker tub, and double vanity. Plus two additional bedrooms and a laundry upstairs. -
Room To Grow
Plenty of storage for all your household needs in the attached garage, basement and pantry. -
Unique Features
Seamless access to the garage from the pantry and kitchen. Large windows throughout to maximize natural light. -
More Options
Add basement development for a rec-room, additional guest suite and bathroom, or customize to suit your lifestyle! -
3D Tour
Each NVH plan is fully customizable and can be quoted based on the location of your choice.
Terms and conditions apply. All renderings and design concepts are artistic interpretations of our plans. Selection choices, final finishes, and upgrades may vary. All prices include HST.
The NVH Standard
-
Your Chosen Completed Home Design and Serviced Lot.
-
Complimentary Interior Design Consultation.
-
Premium Vinyl Siding & Exterior Accent Features.
-
30 Year Warranty Shingles.
-
Digital Thermostats and Electric Baseboard Heating.
-
Insulated R22 Exterior Walls & R50 in the Attic.
-
Heat Recovery Ventilator.
-
Allowances for Customized Cabinets, Flooring, Plumbing Fixtures, and Lighting of your choice.
-
Unfinished Insulated Basement with Concrete Floor & Future Bathroom Rough-In.
-
Full Landscaping with Nursery Lawn Sods, Pressure Treated Patio Deck, and Paved Driveway.
-
10 Year Transferable Atlantic Home Warranty.
-
New Victorian Homes’ One Year Wall to Wall Builder’s Coverage, with unique service and advice after closing, from our own Warranty Specialist!
-
All permits, fees and HST.
We are happy to provide personalized quotes for additional features, basement development, in-law suites and apartments. Please contact us for more details.
Design Features
The NVH Standard
-
Your Chosen Completed Home Design and Serviced Lot.
-
Complimentary Interior Design Consultation.
-
Premium Vinyl Siding & Exterior Accent Features.
-
30 Year Warranty Shingles.
-
Digital Thermostats and Electric Baseboard Heating.
-
Insulated R22 Exterior Walls & R50 in the Attic.
-
Heat Recovery Ventilator.
-
Allowances for Customized Cabinets, Flooring, Plumbing Fixtures, and Lighting of your choice.
-
Unfinished Insulated Basement with Concrete Floor & Future Bathroom Rough-In.
-
Full Landscaping with Nursery Lawn Sods, Pressure Treated Patio Deck, and Paved Driveway.
-
10 Year Transferable Atlantic Home Warranty.
-
New Victorian Homes’ One Year Wall to Wall Builder’s Coverage, with unique service and advice after closing, from our own Warranty Specialist!
-
All permits, fees and HST.
We are happy to provide personalized quotes for additional features, basement development, in-law suites and apartments. Please contact us for more details.























