
The Lewisporte
Two Storey
1,520 SQ.FT
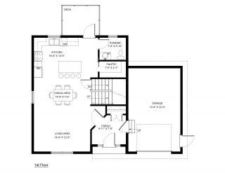
The Lewisporte begins with a grand naturally lit porch and offers our signature open-concept space on the main floor, perfect for entertaining or watching the kids. Upstairs is complete with three bedrooms, including a spacious primary suite with a custom tiled shower and walk-in closet.

The Lewisporte
Two Storey
1,520 SQ.FT
The Lewisporte begins with a grand naturally lit porch and offers our signature open-concept space on the main floor, perfect for entertaining or watching the kids. Upstairs is complete with three bedrooms, including a spacious primary suite with a custom tiled shower and walk-in closet.
Design Highlights
-
Living
Open concept main floor with corner kitchen located at the rear. -
Entertain
Beautiful island with space to enjoy hosting, cooking, and conversations. -
Comfort
Large porch with access to the garage and windows at the front of the home to maximize natural light. -
Room To Grow
Spacious primary bedroom with ensuite and walk in closet. -
Unique Features
Walk-in pantry and hidden half bath off the kitchen. -
More Options
Add basement development for a rec room, additional guest suite and bathroom, or customize to suit your lifestyle!
The NVH Standard
-
Your Chosen Completed Home Design and Serviced Lot.
-
Complimentary Interior Design Consultation.
-
Premium Vinyl Siding & Exterior Accent Features.
-
30 Year Warranty Shingles.
-
Digital Thermostats and Electric Baseboard Heating.
-
Insulated R22 Exterior Walls & R50 in the Attic.
-
Heat Recovery Ventilator.
-
Allowances for Customized Cabinets, Flooring, Plumbing Fixtures, and Lighting of your choice.
-
Unfinished Insulated Basement with Concrete Floor & Future Bathroom Rough-In.
-
Full Landscaping with Nursery Lawn Sods, Pressure Treated Patio Deck, and Paved Driveway.
-
10 Year Transferable Atlantic Home Warranty.
-
New Victorian Homes’ One Year Wall to Wall Builder’s Coverage, with unique service and advice after closing, from our own Warranty Specialist!
-
All permits, fees and HST.
We are happy to provide personalized quotes for additional features, basement development, in-law suites and apartments. Please contact us for more details.
Design Features
The NVH Standard
-
Your Chosen Completed Home Design and Serviced Lot.
-
Complimentary Interior Design Consultation.
-
Premium Vinyl Siding & Exterior Accent Features.
-
30 Year Warranty Shingles.
-
Digital Thermostats and Electric Baseboard Heating.
-
Insulated R22 Exterior Walls & R50 in the Attic.
-
Heat Recovery Ventilator.
-
Allowances for Customized Cabinets, Flooring, Plumbing Fixtures, and Lighting of your choice.
-
Unfinished Insulated Basement with Concrete Floor & Future Bathroom Rough-In.
-
Full Landscaping with Nursery Lawn Sods, Pressure Treated Patio Deck, and Paved Driveway.
-
10 Year Transferable Atlantic Home Warranty.
-
New Victorian Homes’ One Year Wall to Wall Builder’s Coverage, with unique service and advice after closing, from our own Warranty Specialist!
-
All permits, fees and HST.
We are happy to provide personalized quotes for additional features, basement development, in-law suites and apartments. Please contact us for more details.


