
The Lomond
Two Storey
1,540 SQ.FT
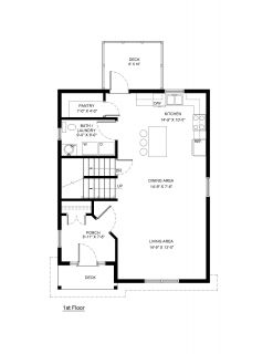
New to our collection, The Lomond maximizes space and emphasizes practicality. Step into a corner porch that leads into a modern and airy kitchen and living area with an eat-in island and walk-in pantry. Upstairs you will take comfort in the spacious primary quarters or one of the two additional bedrooms.

The Lomond
Two Storey
1,540 SQ.FT
New to our collection, The Lomond maximizes space and emphasizes practicality. Step into a corner porch that leads into a modern and airy kitchen and living area with an eat-in island and walk-in pantry. Upstairs you will take comfort in the spacious primary quarters or one of the two additional bedrooms.
Design Highlights
-
Living
An opulent corner kitchen that flows into an open concept living area. -
Entertain
Plenty of room for guests to stay in the two additional bedrooms located on the second level. -
Comfort
Large primary quarters with an impressive closet and ensuite. -
Room To Grow
Ample storage in the basement for future development of a rec-room, bar or gym space. -
Unique Features
A large porch with plenty of closet space. -
More Options
Add basement development for a rec-room, additional guest suite and bathroom, or customize to suit your lifestyle.
The NVH Standard
-
Your Chosen Completed Home Design and Serviced Lot.
-
Complimentary Interior Design Consultation.
-
Premium Vinyl Siding & Exterior Accent Features.
-
30 Year Warranty Shingles.
-
Digital Thermostats and Electric Baseboard Heating.
-
Insulated R22 Exterior Walls & R50 in the Attic.
-
Heat Recovery Ventilator.
-
Allowances for Customized Cabinets, Flooring, Plumbing Fixtures, and Lighting of your choice.
-
Unfinished Insulated Basement with Concrete Floor & Future Bathroom Rough-In.
-
Full Landscaping with Nursery Lawn Sods, Pressure Treated Patio Deck, and Paved Driveway.
-
10 Year Transferable Atlantic Home Warranty.
-
New Victorian Homes’ One Year Wall to Wall Builder’s Coverage, with unique service and advice after closing, from our own Warranty Specialist!
-
All permits, fees and HST.
We are happy to provide personalized quotes for additional features, basement development, in-law suites and apartments. Please contact us for more details.
Design Features
The NVH Standard
-
Your Chosen Completed Home Design and Serviced Lot.
-
Complimentary Interior Design Consultation.
-
Premium Vinyl Siding & Exterior Accent Features.
-
30 Year Warranty Shingles.
-
Digital Thermostats and Electric Baseboard Heating.
-
Insulated R22 Exterior Walls & R50 in the Attic.
-
Heat Recovery Ventilator.
-
Allowances for Customized Cabinets, Flooring, Plumbing Fixtures, and Lighting of your choice.
-
Unfinished Insulated Basement with Concrete Floor & Future Bathroom Rough-In.
-
Full Landscaping with Nursery Lawn Sods, Pressure Treated Patio Deck, and Paved Driveway.
-
10 Year Transferable Atlantic Home Warranty.
-
New Victorian Homes’ One Year Wall to Wall Builder’s Coverage, with unique service and advice after closing, from our own Warranty Specialist!
-
All permits, fees and HST.
We are happy to provide personalized quotes for additional features, basement development, in-law suites and apartments. Please contact us for more details.


