
The Port Rexton
Two Storey
1,496 SQ.FT
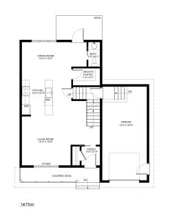
The Port Rexton was designed by combining the best features from our modern, two-storey, single-family detached homes and adding a garage. This design is a go-to choice among first-time home buyers. The main floor features a unique layout—with the kitchen at the middle, the living room at the front, and the dining room at the back—which creates a wonderful flow that is fantastic for entertaining.

The Port Rexton
Two Storey
1,496 SQ.FT
The Port Rexton was designed by combining the best features from our modern, two-storey, single-family detached homes and adding a garage. This design is a go-to choice among first-time home buyers. The main floor features a unique layout—with the kitchen at the middle, the living room at the front, and the dining room at the back—which creates a wonderful flow that is fantastic for entertaining.
Design Highlights
-
Living
Our signature open concept space, with centre kitchen and oversized island. -
Entertain
Seamless transitions between cooking, living and dining to keep the conversation flowing. -
Comfort
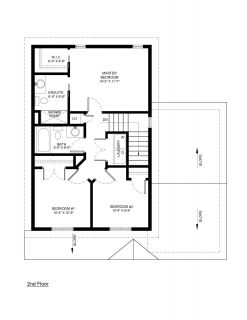
Spacious primary suite, walk-in closet and tiled shower ensuite. Two additional bedrooms and laundry upstairs. -
Room To Grow
Walk-in pantry, with convenient access to the attached garage and undeveloped basement. -
Unique Features
Created for First-Time Home Buyers, this home continues to inspire with more affordability and ticks on the wish-list. -
More Options
Add basement development for a rec room, additional guest suite and bathroom, or customize to suit your lifestyle! -
3D Tour
Each NVH plan is fully customizable and can be quoted based on the location of your choice.
Terms and conditions apply. All renderings and design concepts are artistic interpretations of our plans. Selection choices, final finishes, and upgrades may vary. All prices include HST.
The NVH Standard
-
Your Chosen Completed Home Design and Serviced Lot.
-
Complimentary Interior Design Consultation.
-
Premium Vinyl Siding & Exterior Accent Features.
-
30 Year Warranty Shingles.
-
Digital Thermostats and Electric Baseboard Heating.
-
Insulated R22 Exterior Walls & R50 in the Attic.
-
Heat Recovery Ventilator.
-
Allowances for Customized Cabinets, Flooring, Plumbing Fixtures, and Lighting of your choice.
-
Unfinished Insulated Basement with Concrete Floor & Future Bathroom Rough-In.
-
Full Landscaping with Nursery Lawn Sods, Pressure Treated Patio Deck, and Paved Driveway.
-
10 Year Transferable Atlantic Home Warranty.
-
New Victorian Homes’ One Year Wall to Wall Builder’s Coverage, with unique service and advice after closing, from our own Warranty Specialist!
-
All permits, fees and HST.
We are happy to provide personalized quotes for additional features, basement development, in-law suites and apartments. Please contact us for more details.
Design Features
The NVH Standard
-
Your Chosen Completed Home Design and Serviced Lot.
-
Complimentary Interior Design Consultation.
-
Premium Vinyl Siding & Exterior Accent Features.
-
30 Year Warranty Shingles.
-
Digital Thermostats and Electric Baseboard Heating.
-
Insulated R22 Exterior Walls & R50 in the Attic.
-
Heat Recovery Ventilator.
-
Allowances for Customized Cabinets, Flooring, Plumbing Fixtures, and Lighting of your choice.
-
Unfinished Insulated Basement with Concrete Floor & Future Bathroom Rough-In.
-
Full Landscaping with Nursery Lawn Sods, Pressure Treated Patio Deck, and Paved Driveway.
-
10 Year Transferable Atlantic Home Warranty.
-
New Victorian Homes’ One Year Wall to Wall Builder’s Coverage, with unique service and advice after closing, from our own Warranty Specialist!
-
All permits, fees and HST.
We are happy to provide personalized quotes for additional features, basement development, in-law suites and apartments. Please contact us for more details.





















































