
The Trinity
Two Storey
2,183 SQ.FT
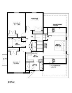
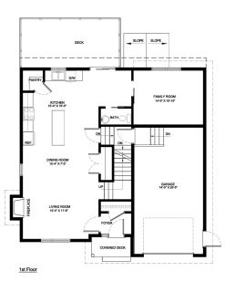
The Trinity is a stunning home, with grand peaks and elegant roofline. This design features an open concept space on the main floor, complete with a corner kitchen, walk-in pantry and bonus room for playdates, private dining or working from home. Upstairs is the private and extra large primary suite with cathedral ceilings and three additional well-sized bedrooms. The perfect home for your family to grow in, especially with the option of an in-law apartment!

The Trinity
Two Storey
2,183 SQ.FT
The Trinity is a stunning home, with grand peaks and elegant roofline. This design features an open concept space on the main floor, complete with a corner kitchen, walk-in pantry and bonus room for playdates, private dining or working from home. Upstairs is the private and extra large primary suite with cathedral ceilings and three additional well-sized bedrooms. The perfect home for your family to grow in, especially with the option of an in-law apartment!
Design Highlights
-
Living
Welcoming and elegant open-concept layout with 9-foot ceilings. -
Entertain
Large corner kitchen, with island for hosting and cooking your favourite meals together. -
Comfort
A truly stunning and spacious loft primary suite, with cathedral ceilings, walk-in closet and ensuite. Four bedrooms and laundry on the second floor, perfect for a growing family. -
Room To Grow
Designed to maximize space, with walk-in pantry and plenty of closet space throughout. -
Unique Features
Hidden room off of the kitchen, a great space for the kids to play, a formal dining, office or music room. -
More Options
Add basement development for an in-law suite, basement apartment, rec room, guest suite or customize to suit your lifestyle!
Each NVH plan is fully customizable and can be quoted based on the location of your choice.
Terms and conditions apply. All renderings and design concepts are artistic interpretations of our plans. Selection choices, final finishes, and upgrades may vary. All prices include HST.
The NVH Standard
-
Your Chosen Completed Home Design and Serviced Lot.
-
Complimentary Interior Design Consultation.
-
Premium Vinyl Siding & Exterior Accent Features.
-
30 Year Warranty Shingles.
-
Digital Thermostats and Electric Baseboard Heating.
-
Insulated R22 Exterior Walls & R50 in the Attic.
-
Heat Recovery Ventilator.
-
Allowances for Customized Cabinets, Flooring, Plumbing Fixtures, and Lighting of your choice.
-
Unfinished Insulated Basement with Concrete Floor & Future Bathroom Rough-In.
-
Full Landscaping with Nursery Lawn Sods, Pressure Treated Patio Deck, and Paved Driveway.
-
10 Year Transferable Atlantic Home Warranty.
-
New Victorian Homes’ One Year Wall to Wall Builder’s Coverage, with unique service and advice after closing, from our own Warranty Specialist!
-
All permits, fees and HST.
We are happy to provide personalized quotes for additional features, basement development, in-law suites and apartments. Please contact us for more details.
Executive Package Included!
-
Full Service Interior Design.
-
Two-Head Mini-Split Heat Pump.
-
Electric Car Charger Rough-In.
-
Black Windows.
-
Hardwood Stairs.
-
Fireplace & Decoration.
-
Kitchen Backsplash.
-
Under Cabinet Lights.
-
Solid Surface Countertop.
Design Features
The NVH Standard
-
Your Chosen Completed Home Design and Serviced Lot.
-
Complimentary Interior Design Consultation.
-
Premium Vinyl Siding & Exterior Accent Features.
-
30 Year Warranty Shingles.
-
Digital Thermostats and Electric Baseboard Heating.
-
Insulated R22 Exterior Walls & R50 in the Attic.
-
Heat Recovery Ventilator.
-
Allowances for Customized Cabinets, Flooring, Plumbing Fixtures, and Lighting of your choice.
-
Unfinished Insulated Basement with Concrete Floor & Future Bathroom Rough-In.
-
Full Landscaping with Nursery Lawn Sods, Pressure Treated Patio Deck, and Paved Driveway.
-
10 Year Transferable Atlantic Home Warranty.
-
New Victorian Homes’ One Year Wall to Wall Builder’s Coverage, with unique service and advice after closing, from our own Warranty Specialist!
-
All permits, fees and HST.
We are happy to provide personalized quotes for additional features, basement development, in-law suites and apartments. Please contact us for more details.
Executive Package Included!
-
Full Service Interior Design.
-
Two-Head Mini-Split Heat Pump.
-
Electric Car Charger Rough-In.
-
Black Windows.
-
Hardwood Stairs.
-
Fireplace & Decoration.
-
Kitchen Backsplash.
-
Under Cabinet Lights.
-
Solid Surface Countertop.











