Skip to main content

Office

55 White Rose Drive, Suite 203
St. John’s, NL, A1A 5G9

Office

55 White Rose Drive, Suite 203
St. John’s, NL, A1A 5G9

The Brookfield


Beds

Baths

2297

Garage

The Brookfield


4

3+

2297

The Brookfield

Design Details

Two Storey

2,297 SQ.FT

4 Bedrooms | 3+ Bathrooms | Garage

This unique two-storey home is thoughtfully designed to offer both style and functionality, featuring a spacious layout that caters to multigenerational living. 

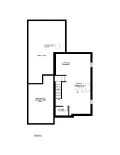
The ground floor includes a fully-equipped in-law suite, providing privacy and comfort with its own separate entrance, kitchen, bathroom, and living area – ideal for extended family or guests. 

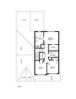
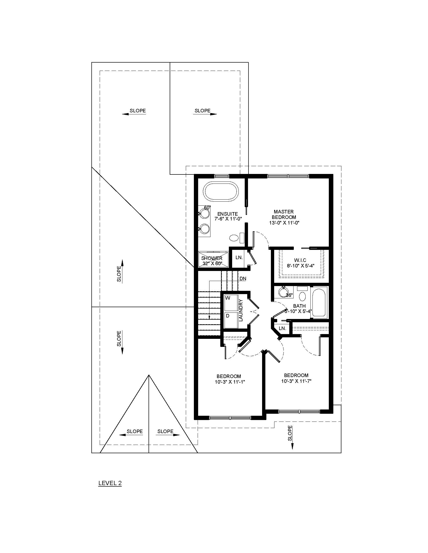
The main living areas are filled with natural light, showcasing an open-concept kitchen that flows into both the dining and living rooms. The upper floor also features three well-appointed bedrooms, including a master suite with a capacious ensuite. With elegant finishes throughout, this home offers flexible living spaces and the perfect blend of comfort, convenience, and modern design.

The Brookfield

Design Details

Two Storey

2,297 SQ.FT

4 Bedrooms | 3+ Bathrooms | Garage

This unique two-storey home is thoughtfully designed to offer both style and functionality, featuring a spacious layout that caters to multigenerational living. 

The ground floor includes a fully-equipped in-law suite, providing privacy and comfort with its own separate entrance, kitchen, bathroom, and living area – ideal for extended family or guests. 

The main living areas are filled with natural light, showcasing an open-concept kitchen that flows into both the dining and living rooms. The upper floor also features three well-appointed bedrooms, including a master suite with a capacious ensuite. With elegant finishes throughout, this home offers flexible living spaces and the perfect blend of comfort, convenience, and modern design.

Floor Plans

Floor Plans

Design Highlights

  • Living

    Thoughtfully designed with family at the core of this home, to provide a ground level in-law apartment.
  • Entertain

    An open concept design that creates a welcoming and comfortable space to entertain guests.
  • Comfort

    A private primary suite that features a double vanity and a soaker tub.
  • Room To Grow

    Two spacious bedrooms that are flooded with natural light.
  • Unique Features

    An inviting covered porch at the front of the home. Second floor laundry area.
  • More Options

    An unfinished basement for future development that can be customized to suit your family’s wishlist.

The NVH Standard

The turnkey price for this design includes the following:
  • Your Chosen Completed Home Design and Serviced Lot.
  • Complimentary Interior Design Consultation.
  • Premium Vinyl Siding & Exterior Accent Features.
  • 30 Year Warranty Shingles.
  • Digital Thermostats and Electric Baseboard Heating.
  • Insulated R22 Exterior Walls & R50 in the Attic.
  • Heat Recovery Ventilator.
  • Allowances for Customized Cabinets, Flooring, Plumbing Fixtures, and Lighting of your choice.
  • Unfinished Insulated Basement with Concrete Floor & Future Bathroom Rough-In.
  • Full Landscaping with Nursery Lawn Sods, Pressure Treated Patio Deck, and Paved Driveway.
  • 10 Year Transferable Atlantic Home Warranty.
  • New Victorian Homes’ One Year Wall to Wall Builder’s Coverage, with unique service and advice after closing, from our own Warranty Specialist!
  • All permits, fees and HST.

We are happy to provide personalized quotes for additional features, basement development, in-law suites and apartments. Please contact us for more details.

Design Features

Living
Thoughtfully designed with family at the core of this home, to provide a ground level in-law apartment.
Entertain
An open concept design that creates a welcoming and comfortable space to entertain guests.
Comfort
A private primary suite that features a double vanity and a soaker tub.
Room To Grow
Two spacious bedrooms that are flooded with natural light.
Unique Features
An inviting covered porch at the front of the home. Second floor laundry area.
More Options
An unfinished basement for future development that can be customized to suit your family’s wishlist.

The NVH Standard

The turnkey price for this design includes the following:
  • Your Chosen Completed Home Design and Serviced Lot.
  • Complimentary Interior Design Consultation.
  • Premium Vinyl Siding & Exterior Accent Features.
  • 30 Year Warranty Shingles.
  • Digital Thermostats and Electric Baseboard Heating.
  • Insulated R22 Exterior Walls & R50 in the Attic.
  • Heat Recovery Ventilator.
  • Allowances for Customized Cabinets, Flooring, Plumbing Fixtures, and Lighting of your choice.
  • Unfinished Insulated Basement with Concrete Floor & Future Bathroom Rough-In.
  • Full Landscaping with Nursery Lawn Sods, Pressure Treated Patio Deck, and Paved Driveway.
  • 10 Year Transferable Atlantic Home Warranty.
  • New Victorian Homes’ One Year Wall to Wall Builder’s Coverage, with unique service and advice after closing, from our own Warranty Specialist!
  • All permits, fees and HST.

We are happy to provide personalized quotes for additional features, basement development, in-law suites and apartments. Please contact us for more details.

Design Highlights